דרואינוב חלק ב'
יום שני, 9 במאי 2016
דרויאנוב חלק ב'
זוכרות את הפרויקט החלומי בתל אביב? הפרויקט הלא סטנדרטי? דירת 100 מ"ר בבניין, בעלת צורת טרפז עם קירות אלכסונים, חדר משולש ועוד שפע דברים לא טריוויאליים.
הפרויקט נעשה בשיתוף פעולה עם חברתי המעצבת רותם חנן והאדריכל אמיר נבון.
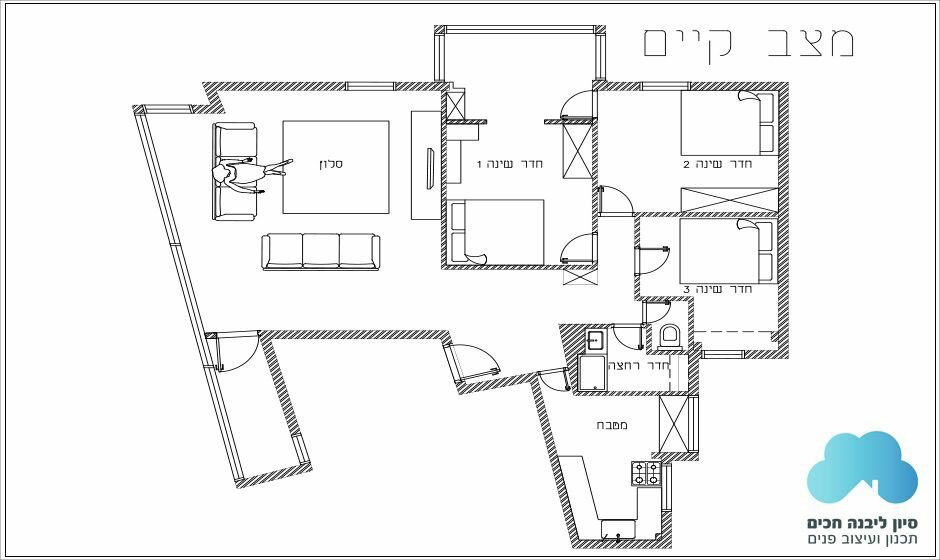
למי שלא זוכרת או פספסה את הפוסט מצרפת עבורכן תמונה של המצב הקיים לפני השיפוץ:

בעלי הנכס ביקשו ליצור מהפך מהקצה לקצה. לשנות את חלוקת החלל, ליצור תחושה של מרחב תוך כדי ניצול מקסימלי של השטח.
הבקשות המרכזיות היו: חלוקה של הנכס ל - 4 חדרים, מטבח גדול עם הרבה מקום אחסון ומרפסת שמעניקה תחושה מפנקת.
המטבח הקודם היה קטן, צפוף, אפלולי, כהה ומרוחק מהסלון. תמונה של המטבח לפני (מסומן על גבי התכנית באדום):

במצב הקיים המרפסת באורך 4 מטר ורוחב 1מטר. לתת תחושה של מרחב גדול בשטח כל כך קטן וצר הייתה משימה מאתגרת בלשון המעטה. מדובר בדירה בבניין ולא הייתה אפשרות להגדיל את הנכס ולשנות את החזית בפרק זמן קצר וקצוב. היה צריך לחשוב על פתרון יצירתי שיצור אשליה של מרחב גדול ללא שינוי פיזי בחלל.
כך המרפסת (מסומנת בכחול), נראתה לפני, או בכינויה "חדר הבלגאן". תודו שלכל בית יש לפחות חדר אחד כזה... לרוב זה הממ"ד :)

תמונה של הסלון לפני (מסומן בירוק):

בדירה היה חדר אמבטיה אחד עם מקלחת קטנה ומיושנת. צמוד אליה היה חדר שירותים פצפון ולא נוח.
תמונה של האמבטיה לפני (מסומנת בכחול):

בפרויקט הזה היה ברור שאנחנו עומדים לפרק את הדירה עד היסוד ולבנות אותה מחדש.
הנה קישור לסרטון ההריסה:
סרטון הריסה
כפי שאני נוהגת עם כל לקוחותיי, הוצגו בפני הדיירים 3 תכניות שונות לחלוקת הדירה מחדש. החלוקה נבחנה מכל הכיוונים האפשריים והייתה מבודלת זו מזו לגמרי. למשל, מיקום המטבח ותכננו היו שונים מתכנית לתכנית. בחלק מהתכניות היו שירותי אורחים + שתי מקלחות נפרדות.הייתה תכנית שכללה 2 חדרי שינה ראשיים שכוללים מקלחות נפרדות ועוד פתרונות יצירתיים.
לאחר שהוצגו התכניות השונות הלקוחות "ליקטו" את הפתרונות/החללים האהובים עליהם ויצרנו מיקס משובח בין כל התכניות. לשמחתנו גם הצלחנו להעניק למרפסת תחושה של מרחב גדול. איך? נשאיר אתכן במתח:)
מוזמנות להתרשם מתכנית העמדה הנבחרת:

על מנת שיהיה קל להתרשם מההבדלים מצרפת לכן שוב את הפרויקט לפני:
התכנון מחדש של הדירה כלל:
1.הפקת תכנית הריסה.
2.הפקת תכנית בניה.
3.הפקת תכנית חשמל + נקודות התאורה.
4.הפקת תכנית העמדה הכוללת תכנון מחדש של מיקום החדרים + העמדת הריהוט בהם.
5.תכנון מחדש של המטבח כולל העתקתו לאזור הסלון.
6.הגדלה ושינוי מיקום חדר רחצה ראשי.
7.תכנון והוספת חדר רחצה סופר מעוצב ומקורי. שווה לחכות.
8.יצירת מדרגות במרפסת ודק מטפס.
9.תכנון הנמכות גבס הכוללת תוכנית מיזוג.
10.תכנון אלמנט נגרות המשמש לאחסון במסדרון במקום קירות. מכיוון שחדר הילדים לא גדול ואין בו הרבה מקום אחסון יצרנו במסדרון הראשי אלמנט נגרות המשמש לאחסון משני הצדדים, גם מכיוון המסדרון וגם מתוך החדר. הבונוס הגדול של פריט נגרות זה הוא בטשטוש הזויות האלכסוניות שבדירה.
11.הפקת סט תכניות אלומיניום עבור כל החלונות.
12.הפקת סט תכניות של פרטי נגרות (דרך אגב, כל העיגולים עם האות C בתכנית העמדה מסמנים את פרטי הנגרות שתוכננו עבור הדירה. כן כן. תוכננו כאן 12 פרטי נגרות בהתאמה אישית. 12!!! הם כוללים את שלושת המיטות, ארונות הקיר, ארונות הכיור, ארון השירות וכמובן המטבח. הייתה מחשבה על כל פרט ופרט וסט תכניות ענק ועב כרס)
13.תכנית דלתות.
14.פרישות אמבטיה - נשמע סינית? חכו לפוסט הבא – אריחים!!!
חכו יש בפרויקט הזה עוד המון הפתעות. שווה לעקוב.
בינתיים קבלו כמה חשיפות ראשונות:
הנה אני, משתקפת מבעד לראש הטוש באמבטיה.



מוזמנות לעקוב אחרי הפרויקט בlive - בחשבון האינסטגרם שלי וכמובן אתן יותר ממוזמנות להצטרף לשאר המנויות לבלוג ולקבל עדכונים ראשונות...
נפגש בהמשך :)
שלכן,
סיון
![]()

